Lot 3215 Olivine, Olivine DONNYBROOK VIC 3064

Sacramento 31 MK2


4 2 2 15.7

Fixed Price

$950,100

Ready to build / Title date

Jun 2027


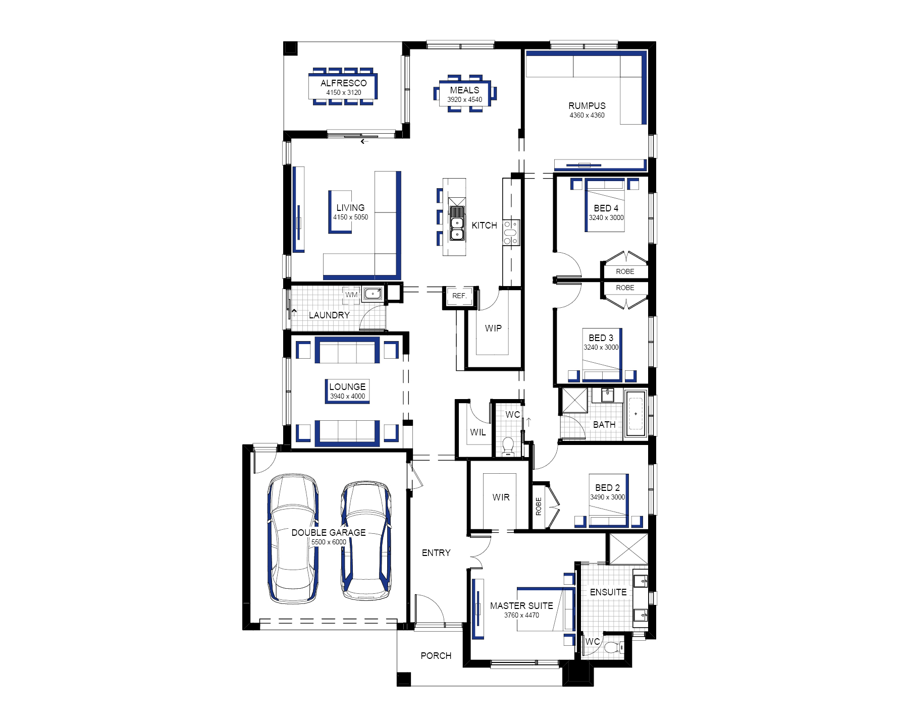
Sacramento 31 MK2 - Floorplan

On display at Redstone


House Area

284.52 m²

House Depth

20.56 m

House Area

30.63 sq

House Width

14.43 m


All of our floorplans allow for structural changes to be made, however, this is dependant upon the suitability of the block. Please speak to a Sales Consultant if you would like to find out more.

Speak to a consultant

Key Features

  • Our Inspire homes offer contemporary, family-focused living, full of character, warmth, and thoughtful spaces for everyday life.

  • Rediscover joy with spaces designed for comfort, connection, and the natural rhythm of modern family living.

  • Open-plan designs with abundant natural light, flexible layouts, clever storage, and premium inclusions grow seamlessly with your family.

  • Make memories and dream big in a home designed to elevate everyday living, with thoughtful details crafted from the start.

Inspire Series Inclusions

Find out more

About DONNYBROOK

Enquire

Median House Snapshot in DONNYBROOK

Population

2,100

No. of Schools

0

Median Sale Price (12 Months)

$654,925

Carlisle Homes in the North region

Homes built since 2004

4.400+

Avg. Completion Time

(Single Storey)

4 months

Avg. Completion Time

(Double Storey)

5 months

Other packages similar to this

Inspire
Ready to build March 2027

Sacramento Retreat 29

Inspire
Ready to build June 2026

Sacramento 29 MK2 (16)

Inspire
Ready to build June 2026

Sacramento 31 MK2

Inspire
Ready to build June 2027

Sacramento Retreat 29

Enquire about house and land packages

We are the experts in house and land, working daily with leading land developers to bring you the best house and land packages across Melbourne. Our fixed prices come with everything you need to create your ideal lifestyle. 

Carlisle newsletter

Sign up to get the latest news from Carlisle Homes including exclusive offers, new home designs, and the latest trends and inspiration.